Reitanlage mit Wohnhaus in Weeze
Malerisch gelegene, perfekte Reitanlage mit großem WohnhausObjektbeschreibung
Dieses idyllisch gelegene, sehr gepflegte Anwesen ist 1991 zu einem kleinen Privatgestüt umgebaut worden.
Auf dem über 3 ha großen Grundstück befinden sich Wohnhaus, Stallungen, Reithalle, Reitplatz, Hengststall, Futterlager, Carports, diverse Weiden und zahlreiche Nebengebäude.
Angrenzende Weideflächen (ca. 2 ha) können zu einem günstigen Preis gepachtet werden.
Das 30.287 m² große, kelchförmig geschnittene Grundstück ist voll eingefriedet und wird zusätzlich auf der östlichen Seite natürlich durch den malerischen Flußlauf der Niers begrenzt. Im Westen markiert die eigentümerseitig gesetzte Bepflanzung jenseits (ca. 1,5 m) der Einzäunung den Grenzverlauf des Flurstücks.
Über eine langgestreckte, flankierend bepflanzte Zufahrt gelangt man auf das Anwesen. Das große Außentor ist elektrisch fernbedienbar.
Der große, beleuchtete Vorderhof bietet viele Stellplätze. Dieser Bereich zwischen Obstgarten, Reithalle und Haupthaus ist mit hellem Kies versehen.
Haupthaus:
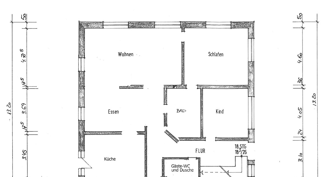
Das große Wohngebäude ist als Ein- oder Zweifamilienhaus nutzbar. Hier stehen in Erd- und Dachgeschoss über 260 m² an Wohnfläche zur Verfügung. Das Haupthaus mitsamt der ca. 130 m² großen Erdgeschosswohnung wurde 1991 komplett saniert. 1993 wurde der ehemalige Getreidespeicher zur wunderschönen, separaten Dachgeschosswohnung mit ca. 130 m² Wohnfläche und ca. 60 m² weiteren Flächen im Spitzboden umgebaut.
Die 2011 modernisierte EG-Wohnung ist großzügig geschnitten in Wohnzimmer, Esszimmer, Küche, 2 Schlafzimmer, Badezimmer, Gäste-WC/Dusche und Flur unterteilt. Von Küche, Wohnzimmer und Esszimmer gelangt man auf die Süd-Terrasse (mit elektrischer Markise) und in den Garten (mit Springbrunnen). Von hier aus läßt sich der Blick auf das eigene Idyll besonders genießen.
Die komfortable Fußbodenheizung wird von der Öl-Zentralheizung gespeist. Auch ein Kamin ist vorhanden. Die isolierverglasten Hartholz-Fenster sind 2006, 2003 und 1991 eingebaut worden und rundum mit Jalousien (Küche/Terrasse elektrisch) ausgestattet. Die Türen bestehen aus Vollholz (Eiche mit Bronzebeschlägen).
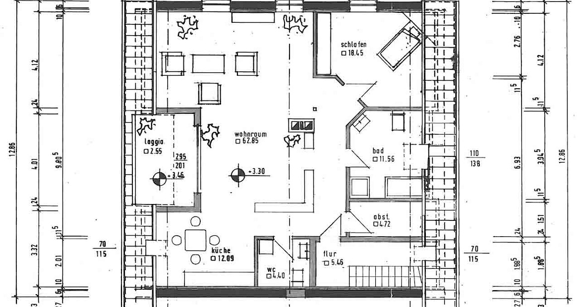
Die beeindruckend große und gemütliche Dachgeschosswohnung erstreckt sich über zwei Etagen, die durch eine innenliegende Treppe miteinander verbunden sind. Die Wohnfläche im Obergeschoss beträgt ca. 130 m². Diese Etage verfügt über einen großzügigen Wohn- und Essbereich mit einer offenen Küche, ein Schlafzimmer, ein Badezimmer, ein Abstellraum und ein Gäste-WC. Von der Loggia in Südlage hat man einen wunderschönen Blick auf die Niers mit angrenzenden Wiesen. Sie kann bei Bedarf mit einer Markise beschattet werden. Fliegengitter halten ungebetene Gäste fern.
Im Spitzboden sind weitere drei Schlafzimmer und ein Speicher bzw. Abstellraum vorhanden. Diese Räume sind aufgrund tiefhängender Holzbalken bei der Wohnflächenberechnung nicht berücksichtigt. Ohne die drei Balken würde die Wohnfläche ca. 50 m² betragen. Zuvor wurden diese Räumlichkeiten als Kinderzimmer genutzt.
Auszugsweise Ausstattung der Wohnung: Holzkaminofen, Bambusparkett in Wohn- und Essbereich.
Holzdielen auf „Empore“, Holzdecken - außer Bad und Gäste-WC, Decke von Bad und Gäste-WC weiße Paneelen, Bad: Dusche, Eckbadewanne mit Sitzmöglichkeit, Küche, Bad, Abstellraum, Gäste WC gefließt, komplette, moderne Einbauküche, Waschmaschinen- und Trocknerstellmöglichkeit in Gäste-WC, Jalousien (außer Bad), hellbraune Holzfenster von 2003, Gegensprechanlage,mit der auch das Außentor geöffnet werden kann, Metalltreppe mit Holzstufen (zw. OG u. DG).
Im Hauptgebäude, zwischen Wohnungen und Stall, befindet sich ein praktischer Trakt. An diesen Gang schließen sich Vorratskammer, Waschküche und das auch von außen erreichbare "Reiter-WC" an. Hier, in einem Anbau, befindet sich auch eine Einzelgarage.
Der Stall (22 m x 13,75 m) ist direkt über das Wohnhaus oder über ein großes Holzschiebetor zu erreichen. Er verfügt über 11 Boxen, 2 innenliegende Futtersilos und 1 Haferquetsche. Der darüber liegende Speicher (dort sind die Silos) bietet mit der gleichen Grundfläche und der maximale Höhe (Satteldach) von 6,85 m enorm viel Nutzfläche.
In einem überdachten Anbau an die Stallungen befindet sich das praktische Strohlager mit Fenstern und Lichteinfallabdeckung (6,80 m x 17 m, niedrigste Höhe: 3 m).
Nebengebäude:
Die Reithalle (12,20 m x 26,85 m breit und 3,60 - 7,50 m hoch) ist gemauert, verfügt über einen Betonboden und ist von innen verputzt. Das Dach (inkl. Balken) ist ca. 10 Jahre alt. Auch die Elektrik ist vor ca. 10 Jahren erneuert worden. Hier sind Starkstrom-Anschluss, Lampen, und Lichtplatten für natürlichen Lichteinfall vorhanden.
Rundum ist Gummi(schutz) als Bande angebracht.
Der Innenraum ist durch 2 Tore ( 1 Schiebetor aus rostfreiem Material, 1 zweiflügeliges Holztor) zu erreichen.
Der gemauerte Hengststall ist an die Reithalle angebaut.
(Maße: 6,80 x 6,75 m). Das Dach (Dachpfanne, Lattung) ist 5 Jahre alt. Zugänge sind über ein Schiebe- und ein einflügeliges Tor von vorn und von der Seite gegeben.
An die Reithalle angebaut sind eine Werkstatt (30 m², mit Abzugsgebläse, Kompressor, Ofen, Starkstrom), drei Carports (111 m², 35 m², 20 m²), ein Zwinger (20 m²) und ein weiterer Raum (20 m²).
Weitere Flächen:
Der Reitplatz - 20 m x 40 m mit Kirchhellener Sand - liegt am malerischen Flußlauf.
Die Weideflächen erstrecken sich südlich der Hofgebäude und liegen geschützt zwischen Bäumen und Sträuchern, sowie dem Fluß Niers.
Im Obstgarten wurden um 1990 diverse Obstbäume gepflanzt (Apfel, Kirschen, Pflaumen, Birnen, Mirabellen,..). An der Grenze zum Obstgarten ist ein alter Baumbestand (u.a. Eschen) vorhanden.
More Information
- Age : 10 Years
- Type : Appartment
- Installment Facility : Yes
- Insurance : Yes
- 3rd Party : No
- Swiming Pool : Yes
- Garden & Field : 2400sqft
- Total Floor : 3 Floor
- Security : 3 Step Security
- Alivator : 2 Large
- Dining Capacity : 20 People
- Exit : 3 Exit Gate
- Fire Place : Yes
- Heating System : Floor Heating
Features
- Fitness Lab and Room
- Swiming Pools
- Parking Facility
- Green Park View
- Playground Include
- Garden
- Kitchen Furniture
- Fire Security
- High Class Door
- Store Room
- Marble Floor
Location
- Objektnummer : 10-390
- Angebot : kaufen
- Typ : Einfamilienhaus
- Price : $375,000
- Area : 6500 sqft
- Bedroom : 5
- Bathroom : 4
- Car Garage : Yes ( 5 Capacity )
- Swimming : Yes ( 1 Large )
- Garden : Yes
- Rating : (12)
Georg von Coelln
+( 81 ) 84 538 91231Related Properties
Park Road Appartment Rent
3225 George Street Brooksville, FL 34610- Area2100 Sqft
- Rooms8
- Beds4
- Baths3
- Garage1
Park Road Appartment Rent
3225 George Street Brooksville, FL 34610- Area2100 Sqft
- Rooms8
- Beds4
- Baths3
- Garage1
Park Road Appartment Rent
3494 Lyon Avenue Middleboro, MA 02346- Area1100 Sqft
- Rooms5
- Beds2
- Baths2
- Garage1
Lovelece Road Greenfield
4213 Duff Avenue South Burlington, VT 05403- Area1200 Sqft
- Rooms7
- Beds5
- Baths4
- Garage1
Copyright © 2026 von Coelln Immobilien


















































































